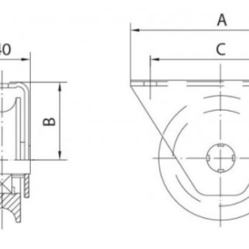
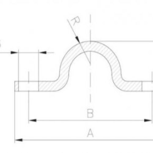
Herrajes puertas correderas